|
|
Autor: Mike Engenheiro de Tratamento de Águas Residuais Especialista em tratamento de água Hora: 18 de junho de 2025 Introdução:Meu nome é Mike e estou profundamente envolvido na área de tratamento de águas residuais e equipamentos de proteção ambiental há muito tempo, com ampla experiência-na linha de frente. Meu foco é a implementação de engenharia e otimização de operações, compartilhando insights práticos e aplicáveis do setor. |
Explicação detalhada dos métodos e precauções de instalação do misturador submersível
Autor: Equipe técnica VIRAMIX
Visão geral
Na aplicação real de tratamento de esgoto, existem três métodos comuns de instalação para misturadores submersíveis: instalação-montada na parede, instalação com haste guia e instalação móvel inferior. Hoje analisaremos os métodos de instalação e as etapas dos três métodos, bem como o escopo aplicável de cada método de instalação.
Método de instalação 1
O primeiro método de instalação-montado na parede também é chamado de tipo de suporte fixo. A misturadora é fixada diretamente na parede da piscina através do suporte. É adequado para cenários de utilização com profundidade de piscina inferior a 3m, piscinas pequenas ou ocasiões com elevados requisitos de posições de instalação. A estrutura é simples, mas a flexibilidade é baixa.

Precauções: O método de instalação-montado na parede é adequado para uso quando a profundidade da piscina é inferior a 3 m e o comprimento máximo da haste guia não pode exceder 3 m.
Método de ajuste de altura: Mova o misturador para cima e para baixo de modo que seu impulsor fique localizado em uma posição mais alta ou mais baixa para se adaptar às mudanças no nível da água ou às diferentes profundidades da água.
Método de ajuste de ângulo: Balance para a esquerda e para a direita para ajustar a direção de agitação do impulsor para controlar a direção do fluxo da água ou fortalecer a mistura de uma área específica.
Método de conexão: Parafusos químicos ou parafusos de expansão são usados para conectar à parede da piscina
O design do método de instalação-montado na parede pode se adaptar de forma flexível a vários tipos de piscinas (piscinas redondas, piscinas retangulares, piscinas irregulares), melhorar a eficiência da mistura ajustando rapidamente o ângulo e a altura e evitar a mistura irregular em cantos mortos.
Método de instalação 2
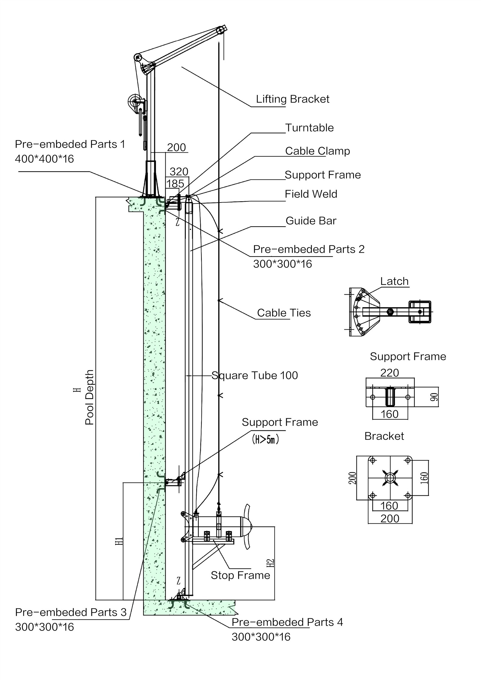
O segundo tipo: a instalação da haste guia também é chamada de instalação em trilho. A talha superior-com manivela aciona o fio de aço para mover o misturador submersível para cima e para baixo na haste-guia ou trilho. É muito conveniente instalar e manter. É adequado para piscinas de pequeno e médio-tamanho e é amplamente utilizado em estações de tratamento de esgoto. A sequência de instalação geralmente é suporte inferior, haste guia, estrutura de suporte para cima e para baixo, estrutura de elevação, guincho manual. O guincho manual pode controlar a elevação e abaixamento do misturador e a operação é mais flexível.


Note: When the pool depth is >5m, uma estrutura de suporte precisa ser adicionada no meio da haste guia
Método de ajuste: O pino da base giratória pode ser ajustado para girar em torno do eixo Z na direção horizontal
Método de conexão: parafusos químicos ou parafusos de expansão são usados para conectar à parede da piscina
Método de instalação 3
O terceiro tipo de instalação móvel também é denominado tipo de suporte de base. A misturadora é fixada sobre um suporte ou base móvel, que não depende da parede da piscina, facilitando a transferência e utilização entre diferentes piscinas. Não requer engenharia civil avançada e engenharia de peças incorporadas. A posição pode ser ajustada a qualquer momento de acordo com o processo e cenário de uso. A operação é simples e conveniente e a manutenção é conveniente.
Método de instalação: Use um guindaste para colocá-lo diretamente em uma posição adequada, podendo ser usado diretamente após conectar a fonte de alimentação

Precisa de um misturador submersível confiável?
Obtenha aconselhamento especializado, soluções personalizadas e preços competitivos para o seu projeto de tratamento de águas residuais.

